Prime Prefab
  • Home
  • Container Homes
    • 40 FT 2 Bed 1 bath
    • 40FT 1 Bed 1 Bath
  • Modular Homes
    • Arlie 1 Bed 1 Bath
    • Whitsunday 2 bed 1 bath
    • Hamilton 3 Bed 1 Bath
    • Bronte 3 Bed 2 Bath
    • Fraser 3 Bed 2 Bath
  • More
    • Home
    • Container Homes
      • 40 FT 2 Bed 1 bath
      • 40FT 1 Bed 1 Bath
    • Modular Homes
      • Arlie 1 Bed 1 Bath
      • Whitsunday 2 bed 1 bath
      • Hamilton 3 Bed 1 Bath
      • Bronte 3 Bed 2 Bath
      • Fraser 3 Bed 2 Bath
Prime Prefab
  • Home
  • Container Homes
    • 40 FT 2 Bed 1 bath
    • 40FT 1 Bed 1 Bath
  • Modular Homes
    • Arlie 1 Bed 1 Bath
    • Whitsunday 2 bed 1 bath
    • Hamilton 3 Bed 1 Bath
    • Bronte 3 Bed 2 Bath
    • Fraser 3 Bed 2 Bath

Your Prefab home experts

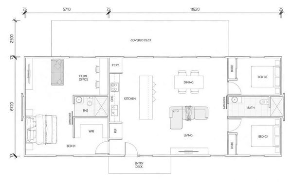
Fraser 3 bed 2 bath 120 sqm

The Fraser is the home families dream of — spacious enough for growing kids and everyday life, yet smartly designed so every corner feels open, bright and connected to the outdoors.


This beautifully balanced 3-bedroom layout delivers:

  • Three generous bedrooms — including a master with robe space
  • A large, flowing open-plan kitchen–dining–living area that opens fully onto a wide covered verandah
  • Practical family bathroom positioned for easy access
  • Step-free entry and thoughtful circulation from front door to deck
  • Clean contemporary lines with timber accents, large glazing and a timeless colour palette


The standout feature? That wide, fully covered verandah — your extra living room, dining space, play area and morning-coffee spot all in one. It turns indoor life into something relaxed and nature-embraced, perfect for Australian backyards, acreage blocks or coastal escapes.


Factory-built modular precision means faster installation, superior quality control, reduced waste, excellent energy efficiency and long-term durability — without compromise on style or comfort.


Room to grow. Space to breathe. Life the way it should feel.


Key Features

  • Overall width — 18metres  
  • Living depth — 6.7 metres  
  • Expansive covered verandah — seamless extension of the living space, ideal year-round  
  • 3 bedrooms — master with robe + two additional well-proportioned bedrooms  
  • Open-plan living zone — kitchen, dining and living flow together with abundant natural light  
  • Central kitchen — generous bench space, overhead cabinets (OHC), fridge recess  
  • Family bathroom — conveniently located near bedrooms  
  • Step-free entry — accessible and welcoming from the first step  
  • Timber-accented design — warm natural tones paired with modern cladding and black roof  
  •  Energy-efficient modular construction — high-performance insulation, minimal site disturbance  


Layout Highlights

  • Heart-of-the-home flow — The open-plan kitchen–dining–living area sits at the centre, with direct access to the wide covered verandah — cook, eat, relax and stay connected.  
  • Private bedroom zone — Bedrooms grouped at one end for quiet retreat; master bedroom feels spacious with excellent robe storage.  
  • Indoor-outdoor living redefined — Large sliding doors and glazing open the entire living space to the verandah — your family’s extra room for play, entertaining or simply enjoying the breeze.  
  • No wasted space — Smart circulation with minimal hallways — every square metre works for your family.  
  • Future-ready comfort — Step-free access and flexible layout make it adaptable as needs change.  


Ideal For

  • Young and growing families  
  • Couples or empty-nesters who still want space for grandchildren and guests  
  • Lifestyle blocks, acreage or suburban sites where connection to nature matters  
  • Weekender escapes, holiday homes or Airbnb / long-term rental investment  
  • Homeowners who value timeless style, outdoor living and modern efficiency  



Floor Plan

At Prime Prefab, we specialise in creating custom homes tailored to your specific needs and preferences. Our team works closely with you throughout the entire process, from initial design to final construction. We use high-quality materials and innovative techniques to bring your dream home to life, ensuring it reflects your unique style.


Copyright © 2026 Prime Prefab - All Rights Reserved.

Powered by

This website uses cookies.

We use cookies to analyze website traffic and optimize your website experience. By accepting our use of cookies, your data will be aggregated with all other user data.

Accept